Schönes 2-Zimmer-Apartment mit Balkon in zentraler Lage

Schlierseestraße 2, 81541 München, Deutschland
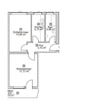
2 Zimmer
51 m² Wohnfläche
1 Badezimmer

Beschreibung

Diese charmante 2-Zimmer-Wohnung befindet sich im 2. Obergeschoss eines gepflegten Mehrfamilienhauses und erstreckt sich über ca. 51 qm. Die Wohnung besticht durch ein gut geschnittenes Wohnzimmer, das viel Raum für individuelle Gestaltungsmöglichkeiten bietet. Angrenzend finden Sie das Schlafzimmer, das durch seine ruhige Lage ideal für Entspannung sorgt. Das Badezimmer ist mit einer modernen Badewanne ausgestattet, die zum Verweilen und Entspannen einlädt.

Ein praktisches Kellerabteil bietet zusätzlichen Stauraum. Die Küche bietet Platz für eine individuell gestaltbare Einbauküche, da die Wohnung derzeit ohne diese ausgestattet ist. Dies gibt Ihnen die Freiheit, Ihre Traumküche nach eigenen Vorstellungen zu realisieren.

Für Ihr Fahrzeug kann auf Wunsch ein Duplex-Stellplatz separat angemietet werden, was die Parkplatzsuche in der Umgebung erheblich erleichtert.

Ausstattung & Merkmale

Balkon
Terrasse
Garten
Keller
Gäste-WC
Sauna
Pool
Klimaanlage

Objektdetails

ObjektartAPARTMENT
Zimmer2
Schlafzimmer1
Badezimmer1
Wohnfläche51 m²
Etage2
Zustandgepflegt
HeizungsartZentralheizung

Lage

Die angebotene Immobilie befindet sich im Stadtteil Obergiesing, welcher zu den beliebtesten Wohnlagen Münchens zählt.

Obergiesing zeichnet sich durch seine zentrale Lage und die gute Infrastruktur aus. Die Münchner Innenstadt ist in nur ca. 15 Minuten mit öffentlichen Verkehrsmitteln zu erreichen. Die U-Bahn-Station "Karl-Preis-Platz" (U2) sowie diverse Buslinien sind fußläufig erreichbar.

Die direkte Umgebung bietet zahlreiche Einkaufsmöglichkeiten, Restaurants, Cafés und kulturelle Einrichtungen. Auch für Familien ist Obergiesing attraktiv, da es diverse Kindergärten, Schulen und Spielplätze gibt.

Das Objekt befindet sich in einer ruhigen Wohnstraße mit guter Anbindung an das öffentliche Verkehrsnetz. Die Nachbarschaft ist geprägt von Mehrfamilienhäusern und gepflegten Grünanlagen. Ein idealer Ort, um in München zu leben.
1.120 €/mtl.
/ Monat
2 Zimmer
51 m² Wohnfl.
Anfrage senden
Teilen:

Ihr Ansprechpartner

Ana Cicati
Ana Cicati

Anfrage senden

Anfrage senden

Weitere Mietobjekte

Diese Objekte könnten Sie auch interessieren

Write a review