Effiziente Bürofläche mit guter Infrastruktur in Germering

Industriestraße 1, 82110 Germering, Deutschland

Beschreibung

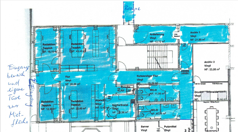
Bei diesem Objekt wird ein Teil einer Bürofläche - 230 qm - zur Untermiete angeboten. Die Gespräche werden direkt mit dem Hauptmieter geführt. Die Räumlichkeiten sind nach Absprache beziehbar.

Es können auch kleinere Flächen nach Absprache angemietet werden.

Das 1983 erbaute Gebäude, welches im Jahr 1997 umfangreich und zuletzt 2025 modernisiert wurde, überzeugt den Nutzer durch eine repräsentative Eingangshalle und effiziente Bürostrukturen.

Die zur Untervermietung stehende Bürofläche hat einen eigenen Eingangsbereich.
Für die Anlieferung schwerer Lasten steht eine Rampe zur Verfügung.
Des Weiteren sorgen begrünte Terrassenflächen für ein angenehmes Ambiente. Die Büroausstattung umfasst stuhlrollenfeste Teppichböden, mit EDV-gerechter Beleuchtung. Fensterbankkanäle, gut ausgestattete Küche, Dusche vorhanden.
Des Weiteren sorgen begrünte Terrassenflächen für ein angenehmes Ambiente.

Gegebenenfalls, wenn gewünscht, Sekretariatsservice, und die Nutzung eines Faxgerätes/Kopierer/Scanner (Pauschale).

Vertragslaufzeit:
Nach Absprache mindestens 1 Jahr , derzeit maximal bis 31. Dezember 2028 (Ablauf des Hauptmietvertrages).

Ausstattung & Merkmale

Balkon
Terrasse
Garten
Keller
Gäste-WC
Sauna
Pool
Klimaanlage

Objektdetails

ObjektartOFFICE

Lage

Das Objekt befindet sich in der Randgemeinde Germering, im Münchener Westen. In wenigen Fahrminuten über die Bundesautobahn A 96 von München aus erreichbar.
S-Bahnstation Germering-Unterpfaffenhofen der Linie S8 ( in der Hauptverkehrszeit zusätzlich S5, dann annähernder 10- statt 20-Minuten -Takt) ca. 10 Gehminuten vom Objekt entfernt.


Fußweg zu öffentl. Verkehrsmitteln: 10 Min.
Fahrzeit nächster Hauptbahnhof: 20 Min
Fahrzeit nächste Autobahn: 5 Min.
Fahrzeit nächster Flughafen: 50 Min.
3.220 €/mtl.
/ Monat
Anfrage senden
Teilen:

Ihr Ansprechpartner

Claudia Aigner
Claudia Aigner

Anfrage senden

Anfrage senden

Weitere Mietobjekte

Diese Objekte könnten Sie auch interessieren

Write a review